top of page
Ghost Lake Renovation
Transforming a 1960s cabin into a contemporary cottage at the lake

This project aimed to breathe new life into a 1960s cabin situated at Ghost Lake, AB. It had undergone multiple additions over the years and was in desperate need of a complete overhaul. With a vision to create a modern retreat for a family of four, the decision was made to strip the cabin down to its studs and expand its footprint
Following the municipal guidelines, we maxed out the allowable footprint and height to satisfy both the by-law requirements and client's necessities. The design blends contemporary exterior finishes with the traditional A-frame cabin aesthetic, providing a unique custom home design that's perfect for enjoying life on the lake.
3
2
2020
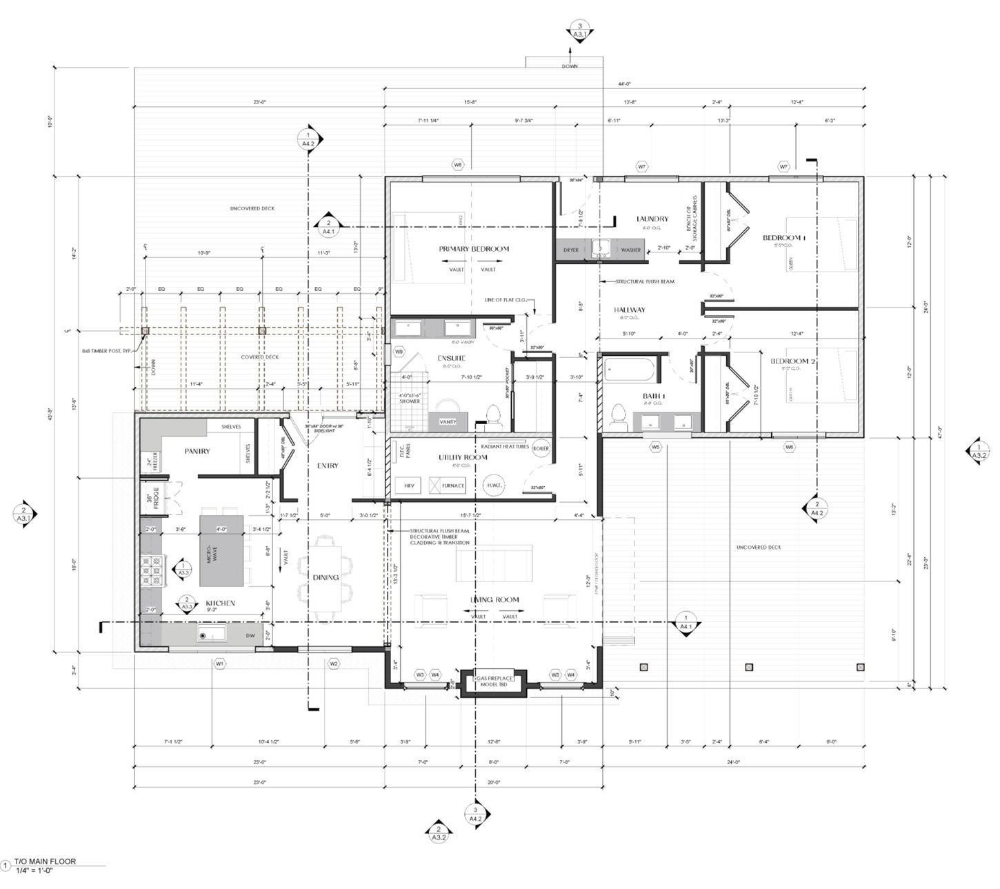
FLOOR PLANS

IMAGE GALLERY
bottom of page









