top of page
Okotoks Barndo
Barndominium Bliss: A Spacious Sanctuary for Modern Living

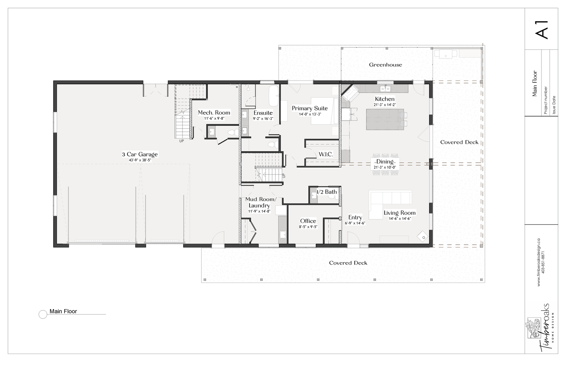
This 1800 sqft barndominium blends rustic charm with modern luxury, featuring vast open-concept living space for large gatherings, seamlessly connecting the generous kitchen with ample storage to the dining and living areas. The convenient main-floor primary suite offers a private retreat with its own ensuite bathroom and walk-in closet. Plus, a massive 1800 sqft, three-bay garage provides endless possibilities for vehicles, hobbies, or storage. This home truly offers the best of spacious, contemporary living.
2
4
3600
FLOOR PLANS
IMAGE GALLERY
bottom of page







