top of page
Lodgepole Barndominium
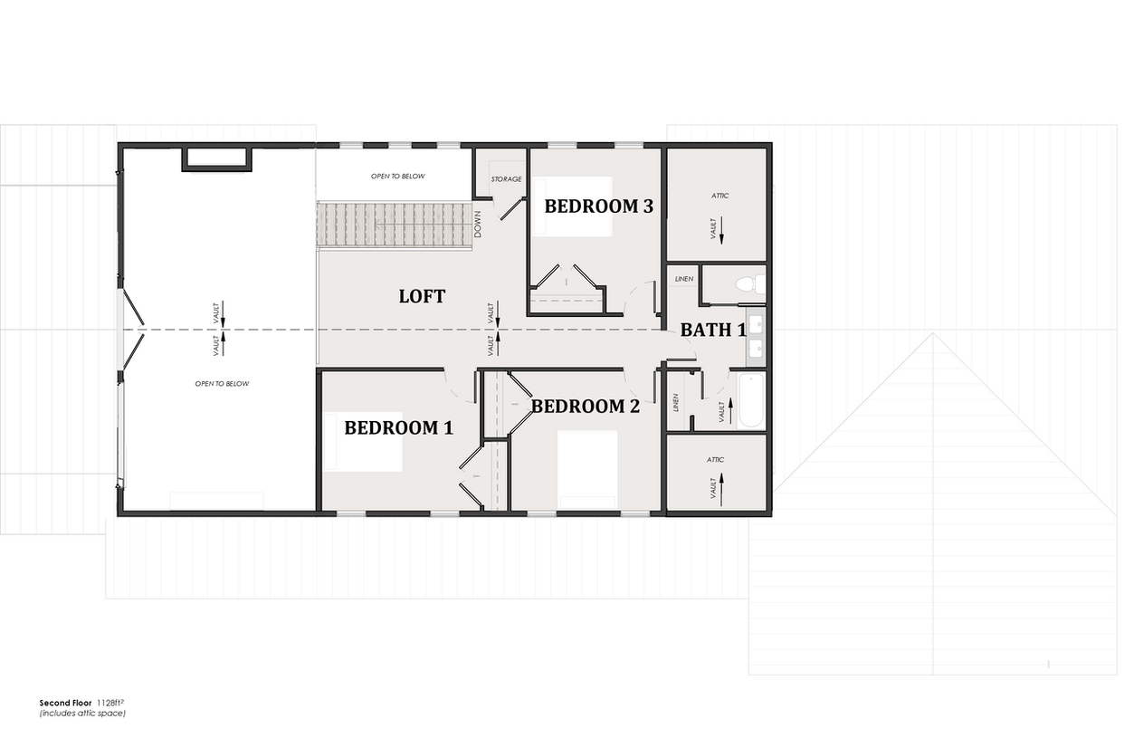
1800sqft Barndominium with loft and spacious 3-car garage

Stock Plan Available Here!
Discover farm living at its finest in this 1800 sqft Barndominium with a loft and a spacious 1200 sqft 3-bay garage. The main floor features a luxurious primary suite with an ensuite bathroom and walk-in closet. Enjoy a large kitchen with ample counter space, an island, and butler's pantry, open living and dining areas with mountain views, and a mudroom for outdoor gear. This plan also features a substantial garage for vehicles and tools. Ideal for serene retreats or entertaining against a picturesque backdrop, this Barndominium promises tranquility and luxury.
4
2.5
2920
FLOOR PLANS

IMAGE GALLERY
bottom of page










